Untitled-1 Untitled-1

سبد خرید ۰

  • سبد خرید شما خالی است
۲۰ اسفند۱۳۹۴
افزودن نظر
  • نسخه 5.8.2.1
  • تعداد بازدید 2233
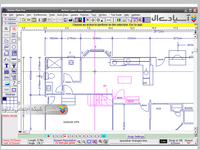
نرم افزار Home Plan Pro یکی از نرم افزارهای کم حجم نقشه کشی می باشد که به کاربر این امکان را میدهد تا به راحتی و با سرعت بیشتری نقشه خود را ترسیم کند. کاربر می تواند آن را به صورت 3D یا 2D ذخیره کند و در اندازه های مختلف آن را چاپ کند.با یک بار استفاده از این نرم افزار آن را جایگزین برنامه معروف ترسیم نقشه کشی اتوکد خواهید کرد.در این نرم افزار شما می توانید تصاویر و طرح های خود را لایه بندی کنید در این صورت هر زمان که بخواهید می توانید لایه ای را پنهان و یا نمایان کنید.در هنگام طراحی های خود می توانید هر نوع خطوط و شکلی از جمله قوس, مستطیل, دایره را به راحتی و بدون هیچگونه زحمتی ترسیم کنید.   

ویژگی های نرم افزار Home Plan Pro :
- امکان ترسیم کمان یا قوس, دایره, مستطیل و خطوط صاف به سادگی
- قابلیت استفاده از موس و کیبورد برای طراحی
- راحتی قرار دادن  یک اندازه درو پنجره
- دارای پنجره‌های متنوع و اندازه مختلف و طرح دار
- ایجاد لایه های مختلف و قابلیت پنهان سازی آن ها
- قابلیت اندازه گیری مساحت و وسعت ساختمان
- امکان ذخیره سازی تنظیمات در مراحل مختلف زوم


جزئیات

برای استفاده از فایل ها ابتدا پارت ها را دانلود و سپس از حالت فشرده خارج کنید
برای خارج کردن فایل ها از حالت فشرده ابتدا باید نرم افزار WinRar را نصب کنید و سپس بر روی پارت اول کلیک راست کرده و گزینه Extract here را انتخاب نمایید
در صورتی که فایل نهایی دارای پسوند iso می باشد برای استفاده می توانید از نرم افزار PowerIso یا WinMount استفاده کنید

پسورد تمام فایل ها

می باشد

مطالب پیشنهادی از سراسر وب

بازخورد شما

شما هم می‌توانید امتیاز دهید.

نظرات

شما هم می‌توانید نقد و نظر بدهید.
فقط کافیه ابتدا وارد حساب کاربری خود شوید.